
Lichtbeton
Compactstation GBÜ-R3
Het krachtigste
GRÄPER-Compactstation
Vervaardigd uit lichtbeton
Storingslichtvloerkwalificatie IAC A 20 kA/1 s (afleiding volgens DIN EN 62271-312).
Geschikt voor uitrusting met transformatoren tot 3.150 kVA en schakelinstallaties met een hoogte tot 190 cm.
Levering met complete, aansluitklare elektrotechnische uitrusting
Specificaties
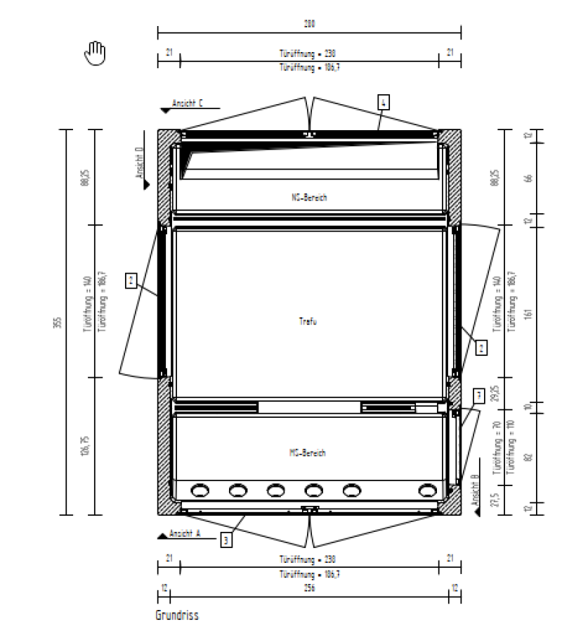
- Stationsafmetingen:
- 355 x 280 x 351 cm
- Transformator:
- t/m 3.150 kVA / max. 220 x 130 x 210 cm
- Middenspanningsschakelaar:
- max. 6 velden / 238 x 192 x 80 cm
- Laadspanningsverdeling:
- max. 225 x 192 x 65 cm / max. 20 NS-strips / facturatiemeting mogelijk
- Telebesturingsruimte (optioneel):
- 70 x 120 x 30 cm
- Gewicht:
- Lichtbeton: 10,7 t zonder elektrische uitrusting, ca. 24 t met elektrische uitrusting
- Hijsankers dak:
- 4 x RD 24
- Hijsankers station:
- 4 x RD 42
*) Getest op boogontladingen of mogelijk om de resultaten van uitgevoerde boogontladingstests op te vragen.

Das könnte Sie auch interessieren
Weitere Kompaktstationen

GBU630S


















MKP 250/400
Die vielseitige Stationsproduktreihe für unterschiedlichste Leistungsanforderungen.

MKP 250/400
Die vielseitige Stationsproduktreihe für unterschiedlichste Leistungsanforderungen.



MKP 1000 TB
Die vielseitige Stationsproduktreihe für unterschiedlichste Leistungsanforderungen.

MKP 1000 TS
Die vielseitige Stationsproduktreihe für unterschiedlichste Leistungsanforderungen.

MKP 2000 TB
Die vielseitige Stationsproduktreihe für unterschiedlichste Leistungsanforderungen.

MKP 2000 TB
Die vielseitige Stationsproduktreihe für unterschiedlichste Leistungsanforderungen.

MKP 2000 TS
Die vielseitige Stationsproduktreihe für unterschiedlichste Leistungsanforderungen.

MKP 2000 TS
Die vielseitige Stationsproduktreihe für unterschiedlichste Leistungsanforderungen.

MKP 3000 TB
Die vielseitige Stationsproduktreihe für unterschiedlichste Leistungsanforderungen.

MKP 3000 TB
Die vielseitige Stationsproduktreihe für unterschiedlichste Leistungsanforderungen.

MKP 3000 TS
Die vielseitige Stationsproduktreihe für unterschiedlichste Leistungsanforderungen.

MKP 3000 TS
Die vielseitige Stationsproduktreihe für unterschiedlichste Leistungsanforderungen.






GBÜ 2500-NL


GKP-S4 NL

GKP-S5 NL


HKP-E-Ü
Die perfekte Übergabestation mit viel Platz für Schutz- und Fernwirktechnik für das »Smart-Grid« der Zukunft.




